Купить твердотопливный парогенератор 1500 кг 115° C 0,07 МПа в Орле

  • Стабильная выработка сухого пара независимо от нагрузки котла
  • Высокая надежность конструкции благодаря отсутствию температурных расширений
  • Возможность подпитки котла даже холодной водой +5 ºС
  • Удобная очистка поверхностей нагрева без остановки котла
  • Не требует регистрации в Ростехнадзоре
Цена с НДС:
1 722 000 рублей
Цена с НДС на твердотопливный парогенератор 1500 кг 115° C 0,07 МПа с доставкой в
от 1 722 000 рублей
Условия в
В наличии на складе
Доставка ТК по России и Казахстану
Безналичный расчет
Есть в наличии
Можно купить в лизинг
Парогенератор на угле 1500 кг пара
Парогенератор 1500 кг пара на угле
Парогенератор 1500 кг пара угольный
Угольный парогенератор 1500 кг пара
Парогенератор 1500 кг пара на угле промышленный
Промышленный парогенератор 1500 кг пара на угле
Парогенераторы 1500 кг пара на угле - производство
Производство парогенераторов 1500 кг пара на угле
Угольные парогенераторы 1500 кг пара промышленные
Промышленные угольные парогенераторы 1500 кг пара
Парогенератор 1500 кг пара на угле - изготовление
Изготовление парогенератора 1500 кг пара на угле
Парогенератор на угле 1500 кг пара
Парогенератор 1500 кг пара угольный
Парогенератор 1500 кг пара на угле промышленный
Парогенераторы 1500 кг пара на угле - производство
Угольные парогенераторы 1500 кг пара промышленные
Парогенератор 1500 кг пара на угле - изготовление
Видеообзор
Производительность 1500 кг/ч
Топливо Твердое, Уголь
Температура пара, не более 115 °С
Давление пара, не более 0.07 МПа
Технические
характеристики
Описание
товара
Комплект
поставки
Дополнительно
потребуется
Схема
подключения
Сертификаты
и гарантии

Технические характеристики парогенератора 1500 кг в час 115 °С на твердом топливе

Тип Парогенератор
Вид топки Ручная, Колосники
Конструкция котла Жаротрубный
Производительность 1500 кг/ч
Производительность 1.5 т/ч
Максимальная тепловая мощность 1.1 МВт
Диапазон регулирования мощности 50-100 %
Топливо Твердое, Уголь
Низшая теплота сгорания проектного топлива 5230 кКал/кг
КПД котла на УГЛЕ 78.6 %
Расход УГЛЯ при максимальной нагрузке котла 249 кг/ч
Расход условного топлива 186 кг/ч
Температура пара, не более 115 °С
Давление пара, не более 0.07 МПа
Давление пара, не более 0.7 кгс/см²
Давление пара, не более 0.7 бар
Полный объем котла 5.9 м³
Объем паровой части 0.57 м³
Аэродинамическое сопротивление 28.3 (2.38) Па (мм. вод. ст.)
Тяга Принудительная
Объем топочной камеры 3.22 м³
Активная площадь решетки горения 2.74 м²
Присоединительные размеры выхода пара 150 Ду
Присоединительные размеры по водяному тракту 32 Ду
Присоединительные размеры по дымовым газам / дымовая труба 550 Ду
Габаритные размеры котла, длина*ширина*высота 4530х2050х2400 мм
Масса 4700 кг
Марка STEAMEXPERT
Энергоэффективность Высокая
Бренд STEAMEXPERT
Чертеж парогенератора 1500 кг 115 С на твердом топливе
Парогенератор 1500 кг 115 С на твердом топливе чертеж
Твердотопливный парогенератор 1500 кг 115 С чертеж
Чертеж твердотопливного парогенератора 1500 кг 115 С

Конструкция и преимущества парогенератора STEAMEXPERT

Промышленный парогенератор 1500 кг пара в час 115 С на твердом топливе марки STEAMEXPERT – выполняется напольной горизонтальной жаротрубной конструкцией.

Котельный блок жаротрубный комбинированный, состоит из наружной обечайки и внутренней обечайки. Пространство между обечайками заполняется водой. Передняя часть внутренней обечайки выполняет функции жаровой трубы – топка котла с колосниковой решеткой. За топкой выполнен водотрубный конвективный пучок. В верхней части котла устанавливается паросборная камера, в которой собирается и сепарируется пар. На паросборной камере устанавливаются предохранительные клапаны, арматура и контрольно-измерительные приборы.Такое устройство принципиально отличает твердотопливный парогенератор STEAMEXPERT-1,5-0,07-115 от парогенераторов марки КП, КПр.

Благодаря большому объему нагреваемой в котле воды и зеркалу испарения, жаротрубный твердотопливный парогенератор 1500 кг с температурой пара 115 С имеет следующие преимущества:

  • потребитель получает сухой пар. Сепарационные устройства препятствуют выносу капель воды с зеркала испарения и капель конденсата образующихся на внутренних стенках паропроводов генератора;
  • независимо от нагрузки происходит бесперебойная подача насыщенного пара;
  • котел парогенератор на угле 1500 кг в часОрёл не боится подпитки даже холодной водой;
  • тепловые расширения металла минимальны поэтому паровой генератор обладает высокой надежностью и долговечностью.

Для удобства обслуживания в процессе эксплуатации в конструкции комбинированного котла предусмотрены следующие технические решения:

  • наружные сажистые отложения очищаются системой обдувки конвективного пакета паром прямо в процессе работы без остановки котла. Для механического удаления сажи, в задней части газоплотный цилиндрический угольный парогенератор КП 1500 кг час имеет люк для очистки.
  • в задней части котла устанавливается продувочный штуцер Ду 25 для удаления образующегося в котле шлама.
  • на паросборной камере и водомерной колонке установлен вентиль Ду 15 для спуска воздуха при подготовке к работе.
Паровой котел твердотопливный с дымовой трубой

Процесс горения современного парогенератора на твердом топливе на 1500 кг пара обеспечивается уравновешенной тягой. Воздух в топочную камеру подается вентилятором поддува, подключаемому к отверстию в фронтовой плите. За котлом устанавливается дымосос. Если у вас высокие требования к экологичности выбросов, производственный угольный парогенератор пар 1500 может работать с золоуловителем.

Производственный стационарный жаротрубный парогенератор Е 1.5 0.07 российского производства подпитывается из питательного бака через электронасос, соединительную арматуру.

Для подпитки желательно устанавливать два насоса – один рабочий и второй резервный.

В передней части жаровой трубы в верхней части установлена легкоплавкая пробка – предохранительное устройство прямого действия. В случае понижения уровня воды в котле ниже критического (аварийного) пробка расплавляется, и струя пара, проникая в топочную часть котла, гасит горящее топливо.

На боковой части корпуса устанавливается водомерная колонка (датчик уровней воды) и два указателя уровня, связанная с паровым и водяным пространством парогенераторной установки соединительными трубками.

Применение парогенераторов

Наши российские жаротрубные парогенераторы низкого давления 0.07 производительностью 1.5 т применяют при производстве ЖБИ изделий, для изготовления пеноблоков, химические и фармацевтические предприятия, строительные организации, бетонные заводы, больницы, общественные заведения, воинские части, автоколонны, ДСУ, бани, предприятия нефтегазовой, кожевенной, перерабатывающей промышленности. В пищевой промышленности парогенераторные установки используют для разморозки, подогрева, пастеризации, стерилизации тары такие предприятия, как спиртзаводы, молочные заводы, птицефабрики для тепловой обработки кормов и ошпаривания птиц, мясокомбинаты и консервные заводы, хлебозаводы, мелькомбинаты, маслосырзаводы, свинокомплексы.

Монтаж котла
Паровой котел на твердом топливе схема

Стальной горизонтальный не поднадзорный твердотопливный парогенератор steam 1500 кг в час для производства пара поставляется блоками максимальной заводской готовности. Котельный блок устанавливается в котельной на специально подготовленную ровную поверхность. Котельный блок подсоединяется по воде, устанавливается запорная арматура на подводящем трубопроводе и отводящем паропроводе, устанавливаются предохранительные клапаны и контрольно-измерительные приборы. Для угольных котлоагрегатов подсоединяется вентилятор, устанавливается дымосос и золоуловитель. Подключается котельная автоматика. Типовые монтажные схемы вы можете изучить в разделе схемы подключения данного товара.

Чтобы перевести парогенератор КПр на угле теплопроизводительность 1500 кг в час в водогрейный режим достаточно изменить схему подключения и установить другие предохранительные клапана.

Купить парогенератор 1500 кг в час 115 С на твердом топливе

Для того чтобы купить промышленный твердотопливный парогенератор 1500 кг пара в час, давлением 0.07 МПа и температурой 115 С в Орле вы можете сделать заявку в отдел сбыта по телефону 8-800-1500-06-43, либо оформить заявку через сайт или почту. Менеджеры дадут консультацию по подбору вспомогательного оборудования для выбранных вами моделей и рассчитают стоимость доставки. Доставка до вашего населенного пункта может осуществляться авто, железнодорожным и речным транспортом.

Если вы затрудняетесь с выбором нужной паропроизводительности, мы можем осуществить подбор, для этого нужно заполнить опросный лист или описать ваш техпроцесс.

Цена парогенератора 1500 кг в час 115 °С на твердом топливе включает в себя запорную арматуру и КИП в пределах котла, вентилятор поддува и предохранительные клапаны. Ниже приведена подробная информация.

Для эффективной и надежной работы парогенератора 1500 кг в час 115 °С на твердом топливе вам потребуется дополнительное оборудование - насос. Мы предлагаем рассмотреть типовые варианты комплектации.

В случае если у вас на объекте имеется насосное оборудование, мы можем проверить совместимость парогенератора 1500 кг в час 115 °С на твердом топливе нашего производства и вашего оборудования.

По необходимости устанавливаются золоуловители.

Типовую схему монтажа котла вы можете посмотреть во вкладке схемы подключения.

Щит котла парового
Автоматика твердотопливного парового котла
168000 руб. с НДС

Автоматика твердотопливного парового котла выполняет следующие функции:

  • ручной пуск котла, вентилятора и насоса;
  • автоматическое поддержания уровня воды в котле;
  • автоматическое поддержание заданного давления пара на выходе из котла.

Выполняет аварийную остановку котла, вентилятора и насоса при:

  • понижении уровня воды в котле ниже критического уровня;
  • повышении уровня воды в котле выше критического уровня (перелив);
  • повышении давления пара в котле.
ДН 6.3 дымосос
Дымосос ДН 6,3/1500
101400 руб. с НДС
ЗУ 1.0 золоуловитель
Золоуловитель 1,1
61000 руб. с НДС
  • Компактный золоуловитель для твердотопливных котлов
  • Может устанавливаться как сразу за котлом, так и на улице
  • Универсальная конструкция позволяет организовать выход справа или слева, в зависимости от компоновки газоходов
ДН 8 дымосос
Дымосос ДН 8/1000
217100 руб. с НДС
Газоход котла
Газоходы
0 руб. с НДС

Жаротрубный твердотопливный парогенератор 1500 кг 115° C 0,07 МПа, предназначен для получения насыщенного пара температурой не более 115 °С и давлением не более 0,07 (0,7) МПа (кгс/cм²) для технологических целей в производстве. Устанавливается в производственных и промышленных котельных.

Монтаж и подключение парогенератора 1500 кг в час 115 °С на твердом топливе

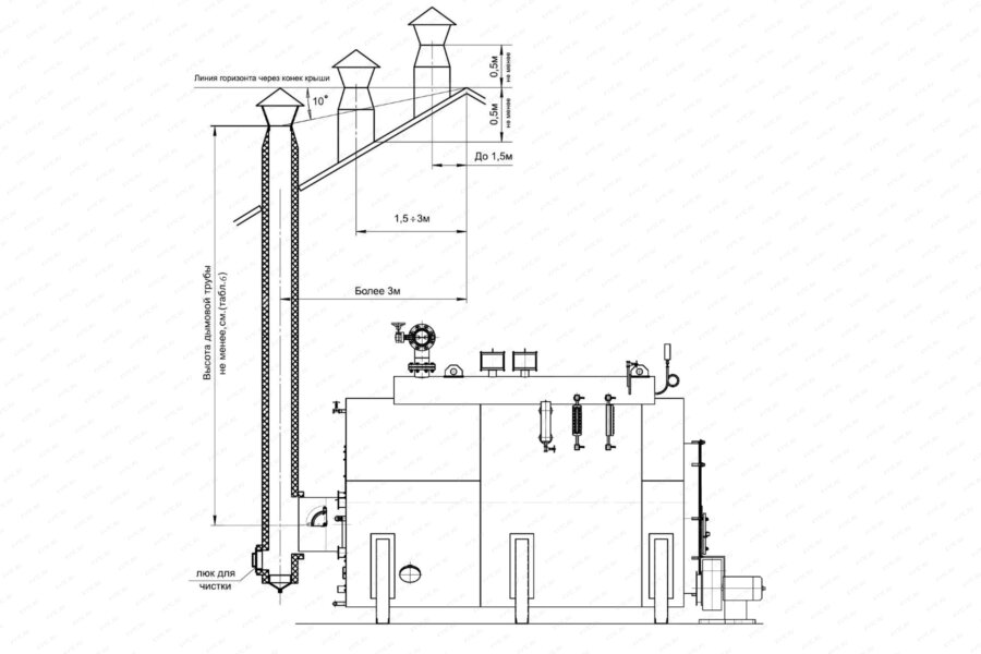
План расстановки оборудования в паровой котельной

Для подключения парогенератора 1500 кг в час 115 °С на твердом топливе в котельном зале необходимо оставить проемы для обслуживания оборудования во время эксплуатации. Эти расстояния рекомендованы СНИП II-35-76. На схеме представлены их размеры. Кроме того мы составили примерный план, как можно произвести расположение подключение оборудования, а также указали перечень минимально необходимого вспомогательного оборудования для работы котла.

К вспомогательному оборудованию при работе парогенератора 1500 кг в час 115 °С на твердом топливе относятся:

  • питательные насосы (1 рабочий, 2 резервный);
  • бак запаса воды;
  • охладитель проб отбора воды;
  • система водоподготовки котловой воды.

Водоподготовительная установка подбирается на основе данных химического анализа воды, проводимого специализированной лабораторией.

Схема парогенератора 1500 кг в час 115 °С на твердом топливе

Схема {{parts_subject_r}}

В передней части жаровой трубы размещена топка, а в задней части - конвективный пучок труб.

В верхней части котла приварен паросборник, представляющий собой полуцилиндр. На паросборной камере устанавливаются предохранительные клапаны и два штуцера Ду15, один для установки электроконтактного манометра, второй для спуска воздуха с котла при заполнении водой при подготовке к работе.

К фронтовой плите крепится воздуховод и вентилятор для подачи воздуха в топку котла под колосниковую решетку.

На задней крышке в основании дымовой трубы выполнен предохранительный взрывной клапан.

Образующиеся в топочной камере продукты сгорания проходят конвективный пучок труб и выводятся через трубу дымовую, установленную на корпусе в хвостовой части котла.

Система питания парогенератора 1500 кг в час 115 °С на твердом топливе

Система питания котла

При работе котла питание водой парогенератора 1500 кг в час 115 °С на твердом топливе производится через штуцер.

Подпитка котла ведется из питательного бака через насос, соединительную арматуру. На трубопроводе подпитки котла водой должно быть установлено запорное устройство и обратный клапан. Запорное устройство должно располагаться между котлом и обратным клапаном.

Для подпитки устанавливается не менее двух насосов с электроприводом. На стороне нагнетания каждого центробежного насоса до запорного органа должен быть установлен обратный клапан.

На трубопроводе выдачи пара, в непосредственной близости от котла, устанавливается запорное устройство.

На котле имеются продувочные штуцера Ду25, Ду15 и Ду10. Штуцер Ду25 предназначен для удаления шлама, образующегося в результате работы котла, периодической продувки котловой воды и для спуска воды в случае необходимости. Штуцер Ду15 предназначен для продувки водомерной колонки. Штуцера Ду10 предназначены для продувки указателей уровня.

В передней части жаровой трубы в верхней части установлена легкоплавкая пробка – предохранительное устройство прямого действия.

На боковой части корпуса устанавливается датчик уровней воды, связанный с паровым и водным пространством котла соединительными трубками не менее Ду25.

На боковой части корпуса устанавливается соединительная труба (колонка), служащая для установки двух указателей уровня, и связанная с паровым и водным пространством котла соединительными трубками не менее Ду25.

На боковой части корпуса внизу у котла имеется ревизия с крышкой, для периодического осмотра состояния поверхностей нагрева со стороны водяного объема.

Отвод пара парогенератора 1500 кг в час 115 °С на твердом топливе

Отвод пара {{parts_subject_r}}

Предохранительные клапаны предназначены для стравливания давления в котле при превышении допустимого значения. На котле установлено самопритирающиеся предохранительных клапана пропускной способностью не менее часовой производительности котле.

Принцип работы клапана состоит в том, что при достижении паром номинального давления избыток пара выходит наружу. Клапана оборудованы ручным приводом для открывания при проверке их на срабатывание.

Щит управления совместно с электрооборудованием предназначен для управления работой парогенератора 1500 кг в час 115 °С на твердом топливе и защиты его при возникновении аварийных ситуаций. На двери щита расположены сигнальная лампа и органы управления работой котла, с табличками, указывающими их назначение. По месту либо на стенке щита крепится сигнальная сирена.

На паросборной камере устанавливается один электроконтактный манометр. При монтаже манометра, показывающего давление пара в котле, должна быть предусмотрена установка трехходового крана между манометром и сифонным устройством. Допускается установка других устройств, позволяющих контролировать показания рабочего манометра, путем подключения в систему контрольного манометра. Электроконтактный манометр выполняет роль датчика давления и предназначен для отключения дутьевого вентилятора и включения аварийной сигнализации при достижении паром предельно допустимого давления.

Датчик уровней служит для подачи команды на включение и отключение питательного насоса котла в процессе работы.

Указатель уровня воды предназначен для визуального контроля за уровнем воды при работе котла. На корпусе указателя крепится рамка или наносятся метки, указывающие верхний и нижний уровень воды.

Легкоплавкая пробка предназначена для сброса пара во внутренний объем топочной камеры в случае упуска воды ниже аварийного уровня и достижения фактического уровня воды на работающем котле ниже верхней кромки жаровой трубы. При этом легкоплавкая пробка перестает охлаждаться котловой водой и нагревается до температуры газов в топочной камере. Из-за нагрева наполнитель легкоплавкой пробки плавится и выдавливается давлением пара в топочную камеру, при этом сбрасывается давление пара и дополнительно гасится пламя.

Гарантийный срок на твердотопливный парогенератор 1500 кг 115° C 0,07 МПа 24 месяца.

Сертификат на котлы паровые КП
Сертификат на паровые котлы КП

Отзывы о продукции

Другая похожая продукция

Парогенератор на угле 1500 кг пара
Твердотопливный парогенератор 1500 кг 130° C 0,17 МПа
Топливо Твердое, Уголь
Производительность, кг/ч 1500
Температура пара, не более, °С 130
Давление пара, не более, МПа 0.17
2 168 000 ₽
Парогенератор на твердом топливе 1500 кг 170 С
Твердотопливный парогенератор 1500 кг 170° C 0,9 МПа
Топливо Твердое, Уголь
Производительность, кг/ч 1500
Температура пара, не более, °С 170
Давление пара, не более, МПа 0.9
2 263 000 ₽
Парогенератор на угле 1000 кг пара
Твердотопливный парогенератор 1000 кг 115° C 0,07 МПа
Топливо Твердое, Уголь
Производительность, кг/ч 1000
Температура пара, не более, °С 115
Давление пара, не более, МПа 0.07
1 403 000 ₽
Парогенератор 2000 кг на угле
Твердотопливный парогенератор 2000 кг 115° C 0,07 МПа
Топливо Твердое, Уголь
Производительность, кг/ч 2000
Температура пара, не более, °С 115
Давление пара, не более, МПа 0.07
1 966 000 ₽